Ngôi nhà hình ống rộng 7m với chiều sâu tới 18m dưới đây nằm ở làng Tứ Liên, ngôi làng đào, quất nổi tiếng của Thủ Đô. Không quá chật chội như nhà trong các quận nội thành nhưng dân cư ở khu vực này cũng rất đông đúc.
Khi xây dựng ngôi nhà này, chủ nhà, vốn là một người trẻ tuổi muốn tạo dựng nên một không gian sống cá tính, thoáng đãng nhưng phải đảm bảo riêng tư cũng như an ninh. Trước yêu cầu này, các không gian sống bên trong được thiết kế theo lối hiện đại với chất liệu mộc mạc.





Các không gian trong nhà được thiết kế mộc mạc, với bê tông không trát, gạch gốm, gạch bông và gỗ mộc cho đồ nội thất là những chất liệu được sử dụng xuyên suốt. Các vật liệu rẻ tiền nhưng được xử lý chi tiết kỹ càng, phù hợp với chức năng sử dụng, mang lại làn gió mới cho những vật liệu không mới.

Phòng khách được thiết kế theo hướng mở

Nội thất mộc mạc được xử lý hiện đại mang đến nét đẹp ấn tượng cho không gian.

Khu bếp – ăn uống được bố trí ở tầng 1. Bên cạnh chất liệu gỗ sáng màu, nhưng viên gạch hoa cũng được phối khéo léo, tạo nên điểm nhấn cho khu vực này.

Để tạo điểm nhấn cho không gian, nhưng phụ kiện như bộ đèn độc đáo đã được thêm vào.


Không gian phòng ngủ master được kết nối với phòng tập GYM ở tầng 3 bằng thang thép tròn.

Các phòng ngủ trong nhà đều rất thoáng, sáng.




Phòng tập gym ngay tại nhà.

Do ngôi nhà nằm trong khu vực trồng đào, quất truyền thống nên nhóm thiết kế đã dành không gian cho loại cây này, kết hợp với bể cá cảnh tạo thành nơi thư giãn. Cây khế cổ thụ được chủ nhà lưu giữ từ ngôi nhà cũ. Sau khi công trình hoàn thiện, cây khế được chuyển về, trồng tại khoảng sân vườn tầng 2 – như một cách giữ lại kỷ niệm.


Cây khế từ nhà cũ được chuyển lên sân vườn ở tầng 2.

Đặc biệt từ trong phòng có có hướng nhìn ra khoảng sân vườn tầng 2.
Hệ thống cầu thang cũng là một điểm sáng của ngôi nhà này. Chất liệu thép – gỗ kết hợp hài hòa và gạch lỗ không chỉ thẩm mỹ mà còn giúp phần giúp các không gian thoáng đãng hơn.



Nhờ thiết kế độc đáo và cách xử lý chất liệu thép khéo léo mà ngôi nhà nhà đã thỏa mãn được cả về tính thẩm mỹ lẫn công năng cho gia chủ. Đây cũng là một giải pháp bạn có thể tham khảo để giải quyết vấn đề về an ninh lẫn lấy sáng cho những ngôi nhà phố.

Sơ đồ thiết kế tầng 1

Sơ đồ thiết kế tầng 2

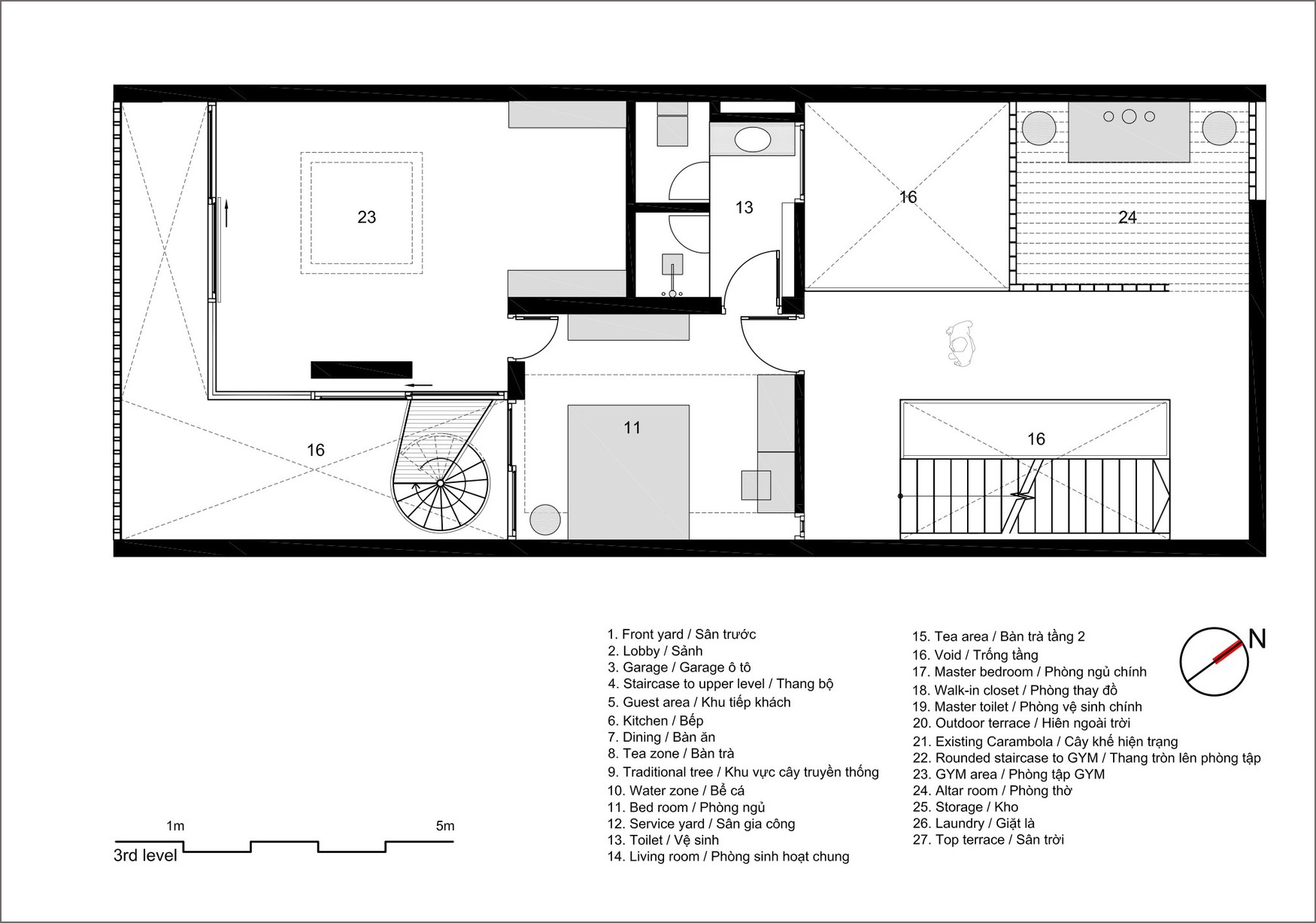
Sơ đồ thiết kế tầng 3

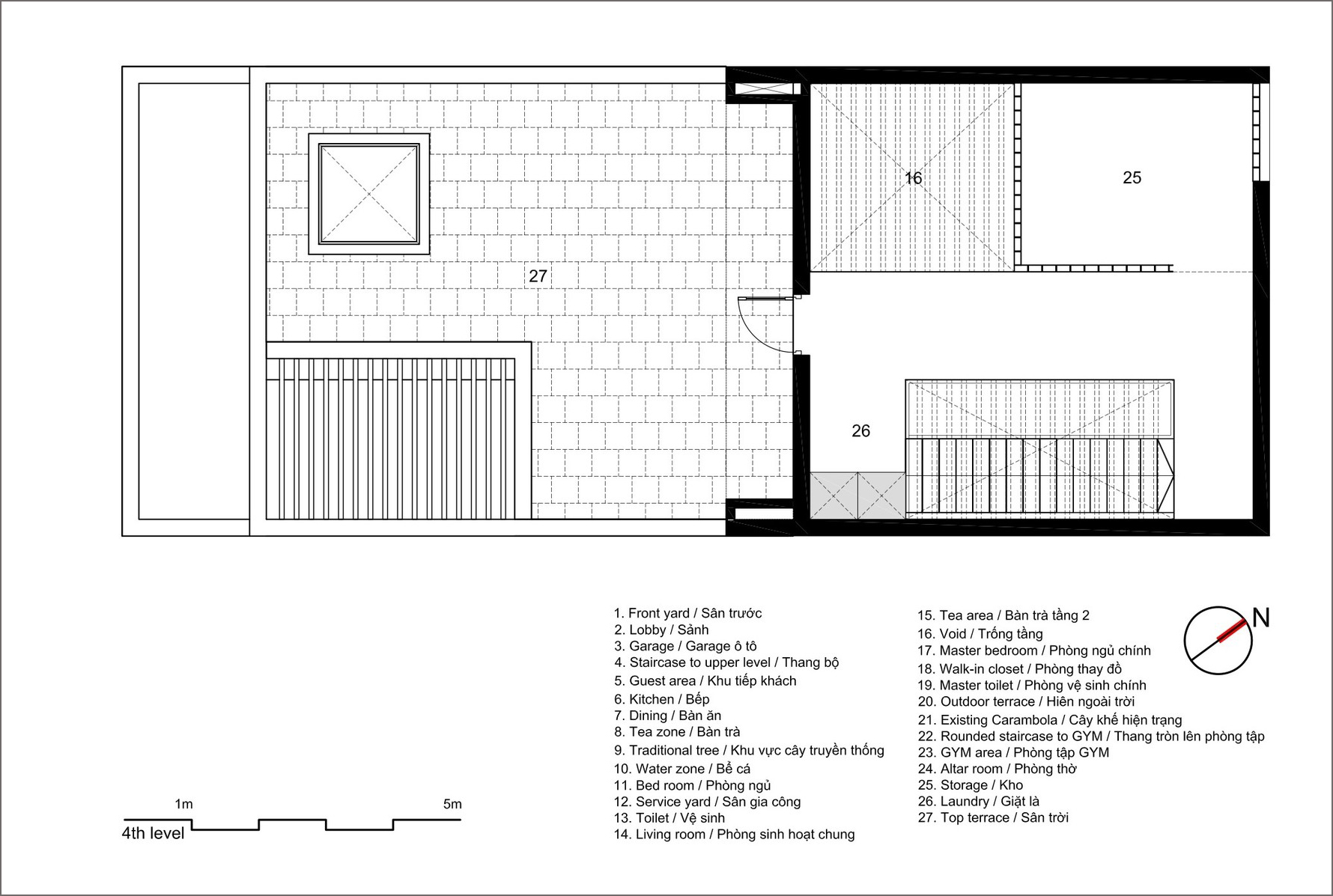
Sơ đồ thiết kế tầng 4
Thông tin dự án:
Tên dự án: Nhà ở 7m x 18m
Vị trí: Tứ Liên – Tây Hồ – Hà Nội
Kiến trúc sư: Công ty kiến trúc AHL và cộng sự
Chủ trì thiết kế: KTS Đào Hưng
Kỹ thuật: Chu Sơn
Nội thất / 3D: Hoàng Hiếu
Mặt đứng / Mô hình: Nguyễn Hoàng
Mặt bằng / Mô hình: Đào Thanh Hải
Giám sát: Vũ Dương
Thiết kế ánh sáng: AIF Studio – KTS Lê Anh Đức
Ảnh(c) Đào Hưng
0 nhận xét: